Make The Most of Your Restaurant Space!
One of the most important features of any foodservice facility is the unimpeded flow of traffic throughout its space. Having a plan, or preliminary design, is key in purchasing the proper equipment and installing it in the best possible way.
Expertise for Efficient Foodservice Operations
This is a complex process which requires knowledge and experience with how restaurants/foodservice facilities function, as well as how the equipment and employees within it work most efficiently.
Preplanning Your Space Provides Many Benefits!
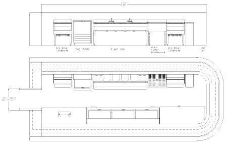
As a full-service company with access to AutoQuotes Designer 2019, Ace Refrigeration Engineering will work directly with business owners and architects. This includes assistance with integrating new and existing equipment, creating seating arrangements, kitchen and prep area layout, a hood ventilation plan, and more. Additionally, we can produce a utility/equipment schedule for engineers, electricians, plumbers, HVAC contractors, and the like. This preplanning service cuts down on change orders, saving clients both time and money, not to mention major headaches. Rates depend on the scope of the project—please contact us for more details.
We Design Efficiency, Deal in Quality, & Ensure Success!
